SpectrumAudio

Ihr Spezialvertrieb für Breitbandlautsprecher und mehr

Preis ist für zwei Stück ohne Holz .

"Silent Lounge" 2 Weg Bassreflexbox

Bauvorschlag aus dem Spieker und Martin Forum
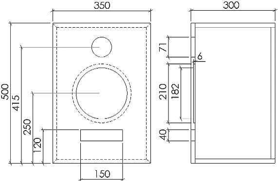
zur Baumappe Tiefmitteltöner mit Hochtöner. (ca. 50 Liter, ca. 35*50*30 cm, B*H*T)

KIT " Silent Lounge" für 280,00 Euro besteht aus :

2 * Tiefmitteltöner Masteraudio BN08/8
2 * Hochtontreiber Celestion CDX1-1070 ohne Horn
2 * Weichenbauteile laut Plan
2 * Terminal mit Polklemmen
1 * Dichtungsband, selbstklebend, 2*5 mm
1 * Noppenschaumstoff 3cm
1 * Polyestervlies 4cm
1 * 4 Meter Kabel 2*1,5 rot/schwarz
home - zur Startseite